1. Residential Air Conditioner
2. Household and Light Commercial HVAC
3. Refrigerator
4. Washing Machine
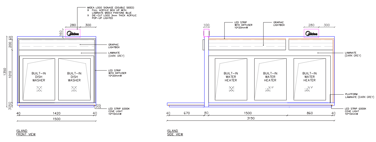
5. Kitchen Water Heater Appliances
6. Microwave & Oven
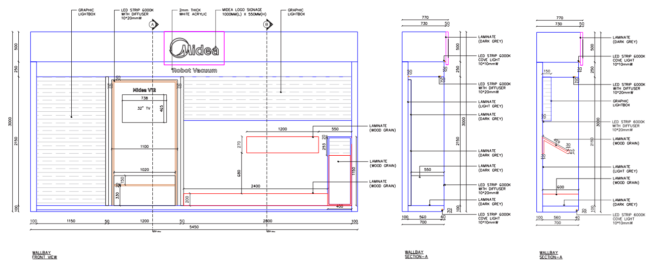
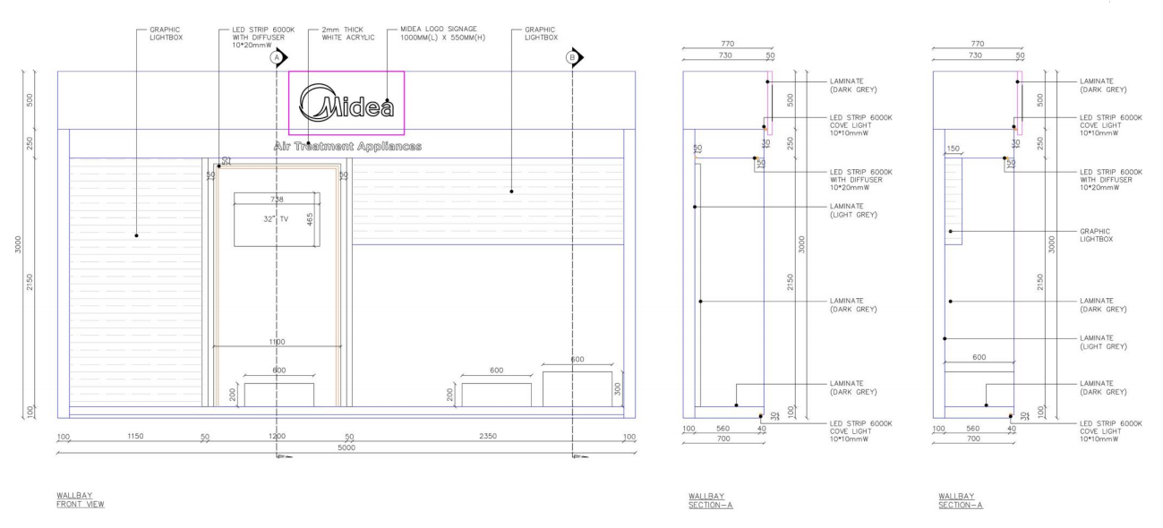
7. Vacuum Cleaners & Robot Vacuum & Mops
8. Small Domestic Appliances
9. Others